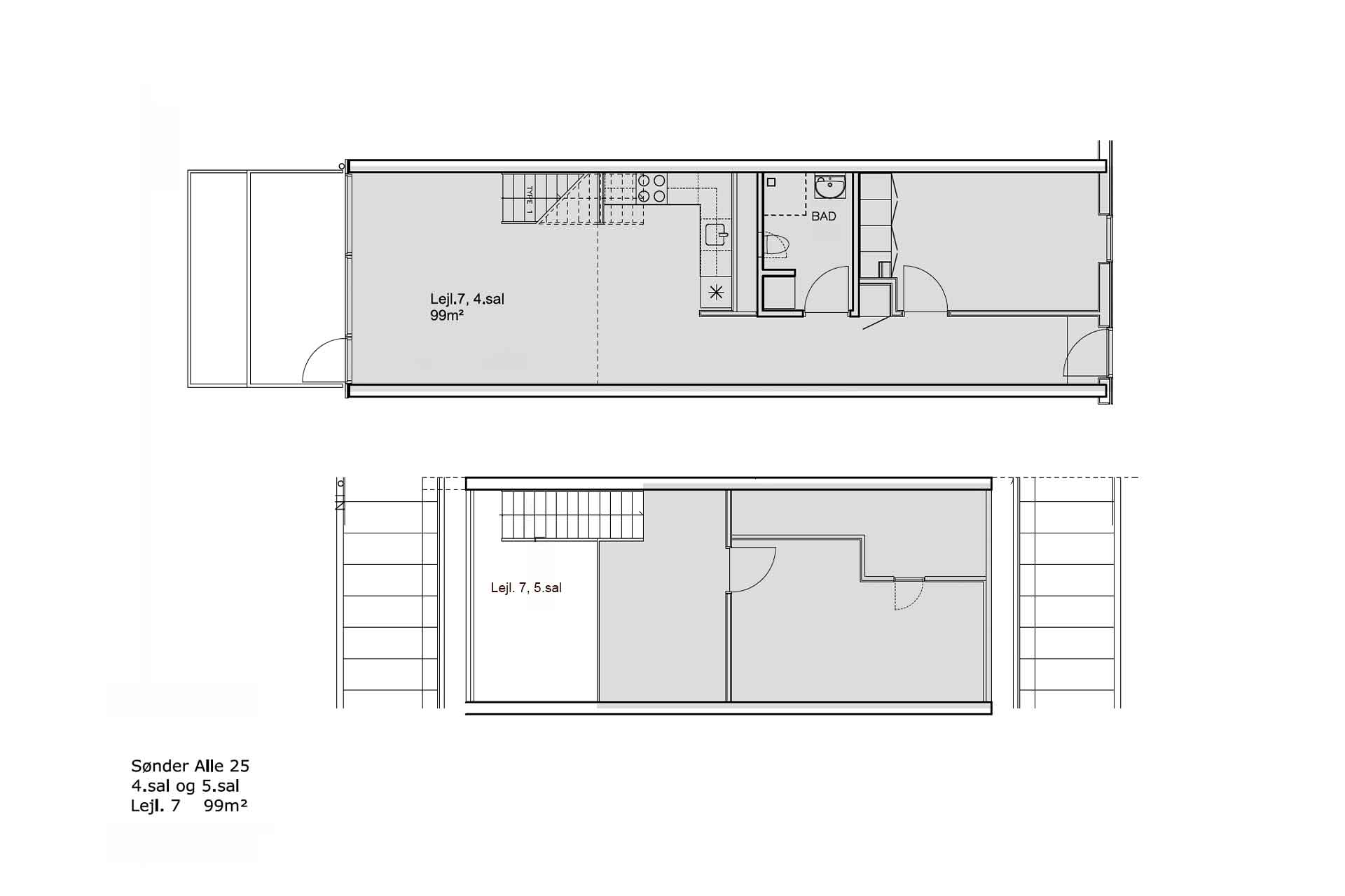
2-værelses lejlighed med hems og stor altan

2-værelses lejlighed med hems/disp. rum og stor altan
Ønsker du/I at bo i Centrum af Aarhus, så er muligheden her - centralt, men alligevel roligt. Tæt ved alle byens faciliteter som Strøget, bus og tog, Streetfood og m.m.

Du/I får her en skøn og lys lejlighed med stor entré, stort brusebadeværelse med plads til vaskemaskine og tørretumbler. Soveværelse med klædeskabe. Køkken i åben forbindelse med opholdsrum, hvorfra der er adgang til altan med en dejlig udsigt. Tillige trappe med opgang til repos velegnet til fx. kontor, lille opholdsgruppe eller. lign. Adgang til meget anvendeligt disp. rum med fin loftshøjde.
Ejendommen har dørtelefoner samt elevator. Det er ikke tilladt at holde husdyr.

Billeder fra lign. lejlighed.

Sønder Allé 25A, 4. 7 8000 Aarhus C

Lejevilkår

  • 99
  • 12.350 kr./md.
  • 1. maj 2026
  • 3 måneders leje (37.050 kr.)
  • 1 måneders leje (12.350 kr.)
  • 700 kr./md.
  • Betales direkte til leverandør
  • B
  • Ingen
Oplysninger i dette dokument, herunder tal, data og tidsplaner, er foreløbige og bør udelukkende betragtes som et oplæg til diskussion. Byggeselskab Mogens de Linde A/S indestår ikke for, at oplysningerne er nøjagtige eller fuldstændige. Oplysningerne i dette dokument er tilvejebragt under den forudsætning, at Byggeselskab Mogens de Linde A/S og enhver medarbejder ikke er ansvarlig for fejl eller unøjagtigheder i dokumentet, som måtte være forårsaget af uagtsomhed eller lignende eller for tab eller skade som følge af sådanne fejl, udeladelser, eller unøjagtigheder. Det er ikke tilladt, helt eller delvist, at anvende eller kopiere i nogen form, hverken tekst, grafik eller billeder, uden forudgående accept fra Byggeselskab Mogens de Linde A/S.

Del denne ejendom

Kopieret

Ring på 86 16 57 00 eller skriv til os her.

Tak for din besked.
Vi vil kontakte dig så hurtigt som muligt.

Med venlig hilsen, Byggeselskab Mogens de Linde

Amaliegade 23 /
Sønder Allé 25A
Kongreshuset

1880
Arbejdernes Forsamlingsbygning

i 1907 opkøbte den århusianske arbejdsbevægelse Frimurerlogen i Amaliegade. Stedet blev det naturlige hjemsted for faglige møder, kongresser, faneindvielser, men også arbejdsbevægelsens fester, der i 1920’erne og 1930’erne gav stedet det sjove tilnavn ”Skraldet” – for det var her, man kunne opleve en ordentlig skrald af en fest! Dog var huset man havde overtaget ikke helt i arbejdernes smag, og en omfattende ombygning var nødvendig. Man ønskede et mere monumentalt ydre i den nye bygning. Ombygningen stod klar til indvielse i 1909, og huset fik tildelt navnet ”Arbejdernes Forsamlingsbygning”. Man hvilte dog ikke længe på laurbærrene. Allerede efter 25-års jubilæet i huset, luftede man tanken, om en udvidelse af bygningen. Tanken faldt i god jord. Ombygningen indebar en modernisering af festsalene og den del af bygningen, der lå ud mod baggården. Hele forhuset skulle derimod rives ned og erstattes med et nyt.

Foto af Jens Tønnesen (1963-2014)Foto af Jens Tønnesen (1963-2014)
”En hypermoderne storbygning”

Således kaldtes bygningen i Demokraten, da den i oktober 1939 stod færdig. Avisen fulgte tidens interesse for al den nye teknik og bragte en lang reportage om de tekniske installationer i huset. Og at kalde bygningen hypermoderne var ikke helt ved siden af. Det hus, som man havde rejst, var næsten dobbelt så stort som den gamle forsamlingsbygning. Der var installeret det mest moderne fjernvarmeanlæg i byen og i kælderen var det muligt at regulere alt med hensyn til ventilation, opvarmning, vandvarme osv. I dag er alt dette selvfølgelig dagligdag, men dengang – hypermoderne. Prisen for hele herligheden? 1.019.802 kr. og 21 øre – dengang et svimlende beløb. Men man kunne også glæde sig over, at være i besiddelse af den mest moderne forsamlingsbygning i hele landet. Indvielsen blev fejret den 13. oktober 1939 med musik fra Århus By-Orkester, og ved den lejlighed tildelte man huset dets nye navn ”Folkets Hus”.   

Foto af Aage Fredslund Andersen (1904-1976)Foto af Aage Fredslund Andersen (1904-1976)
Kongreshuset

Årtierne efter den 2. verdenskrig gik det økonomisk Danmark rigtig godt. Mange fagforeninger svulmede i disse år og dermed også behovet for administrationslokaler. I Folkets hus var en udvidelse nødvendig, hvis man ønskede at holde den århusianske fagbevægelse samlet et sted. Det var på denne baggrund, at man igangsatte en ambitiøs udvidelsesplan. Og at der virkelig var nye tider på vej, kunne ingen være i tvivl om. Formanden i 1968 sagde, at valget med hensyn til ombygningen var, at enten fortsatte man ad de gamle tiltrådte stier, eller også gik man direkte efter virkeliggørelsen af målsætningen om et rentabelt Folkets Hus. For at nå målsætningen måtte man investere, ellers ”ville pengene ikke kunne yngle”. Udskiftningen kom dog ikke til at forløbe uden smækken med dørene. For nogle foreninger betød dette nemlig, at de ikke længere kunne gøre regning på lokaler, som de havde benytte i så lang tid, at de nærmest regnede dem for deres egne. Men omstruktureringerne blev dog accepteret.

Ombygningen blev sat i gang og navnet på selskabet og huset blev ændret til Kongreshuset. Motivationen for navneforandringen var, at det var fordelagtigt ud fra et forretningsmæssigt synspunkt. Det var mere neutralt og kunne medvirke til, at flere kongresser og arrangementer fandt vej til huset. Ombygningen skulle gennemføres med ekspresfart, idet ombygningen gjorde det umuligt at drive husets restaurant med overskud. Blot et år senere var det helt galt med økonomien, og for udvidelsesplanerne så det bestemt ikke godt ud. Man måtte opgive at drive restauranten som andet end en halvdagsrestaurant og udbygningen kom aldrig videre. For at få økonomien til at hænge nogenlunde sammen afhændede man i 1973 alle de ejendomme, man havde i Sønder Allé til Mejeriet Enigheden. Udbygningen var hermed officielt aflyst.

Århus By-Orkester rykker ind

At få nye typer folk og grupper ind i huset havde før været en målsætning. Nu blev det en nødvendighed, hvis huset skulle overleve økonomisk. Kongreshuset levede et hensygnende liv, men da Århus By-Orkester i 1973 rykkede ind, kom der atter liv i huset. Orkesteret havde ved indvielsen i 1939 erfaret, at akustikken i huset var i orden, og at salen med plads til 600 var i stand til at huse et stort publikum. Med By-Orkesteret som lejer kunne man ingen fortsætte ombygningen, som blev færdiggjort i 1976. Det var dog ikke kun kulturelle tiltag, der var med til at holde liv i huset i de svære 1970’ere. Samme år som By-Orkesteret rykkede ind, fik AOF nemlig også lokaler i huset. AOF tilbød undervisning i sprog og elementære skolefærdigheder i huset, og de korte kurser udviklede sig hurtigt til en regulær voksenskole. I en tid hvor omkring 60 pct. af Danmarks befolkningen stadig ikke havde mere end syv års skolegang, kan succesen vel ikke undres. Succesen var så stor, at AOF lagde beslag på alle lokaler på 3. sal og en del af dem på 2. sal.

Foto af Jens Tønnesen (1963-2014)Foto af Jens Tønnesen (1963-2014)
Huset solgt!

Hvor åben man end var over for nye arrangementer, såsom lokalradio, banko og TV-udsendelser, lykkedes det ikke at få Kongreshuset til at løbe rundt. I 1991 investerede man på ny et stort pengebeløb i en opfriskning af hele huset, og satsede i langt højere grad på konfirmationer, sølvbryllupper, firmafester og kongresser. Selvom man oplevede en voldsom omsætningsstigning, løb økonomien stadig ikke rundt. Det hjalp heller ikke på situationen, at det var kommet en ny konkurrent på markedet ’Scandinavian Center’, som stjal alt opmærksomheden. Af den grund valgte man at lade huset overgå til en ny ejer. I 2006 overtager Byggeselskab Mogens de Linde ejendommen og igangsætter en større ombygning til 4 kontorer, 1 butik og 85 lejligheder. Og i 2009 står byggeriet færdigt, hvor der var lagt vægt på at bibeholde det gamle look, men samtidig kombineret med en ny og moderne indretning. Ejendommen har indbragt Byggeselskab Mogens de Linde en hæder fra Aarhus Kommune, et diplom for Byfornyelse 2010. Det er anden gang Amaliegade 21-23 præmieres. Tilbage i 1995 blev LO, Århus Kongreshus også præmieret for sin Byfornyelse.

Om Ejendommen
Prospekt